| 设计 任务书 文档 开题 答辩 说明书 格式 模板 外文 翻译 范文 资料 作品 文献 课程 实习 指导 调研 下载 网络教育 计算机 网站 网页 小程序 商城 购物 订餐 电影 安卓 Android Html Html5 SSM SSH Python 爬虫 大数据 管理系统 图书 校园网 考试 选题 网络安全 推荐系统 机械 模具 夹具 自动化 数控 车床 汽车 故障 诊断 电机 建模 机械手 去壳机 千斤顶 变速器 减速器 图纸 电气 变电站 电子 Stm32 单片机 物联网 监控 密码锁 Plc 组态 控制 智能 Matlab 土木 建筑 结构 框架 教学楼 住宅楼 造价 施工 办公楼 给水 排水 桥梁 刚构桥 水利 重力坝 水库 采矿 环境 化工 固废 工厂 视觉传达 室内设计 产品设计 电子商务 物流 盈利 案例 分析 评估 报告 营销 报销 会计 | |||||
|
|||||
|
|||||
|
|||||
目录
1工程概述
1.1设计依据
1.2项目概述
1.3 设计水平年
2 电力系统概况及项目介绍
2.1 新乡供电区电网概况
2.1.1 电网概况
2.1.2 电网及电源发展规划
2.2河南省环山环保科技有限公司10MW纯低温余热发电项目概况
2.2.1项目概况
2.2.2企业生产规模及用电负荷
2.2.3余热锅炉参数及装机方案的确定
2.2.4厂用电气主接线
2.2.5发电机组选择和主要设备参数
2.2.6余热电站设计指标
2.2.7环境效益
3负荷特性及电力平衡
3.1负荷预测
3.1.1新乡及辉县供电区电力负荷预测
3.1.2秋山供电区负荷预测
3.1.3规划安乐(高庄)供电区负荷预测
3.1.4 环山变负荷预测
3.2电源出力特性
3.2.1火电机组出力特性
3.2.2光伏电站出力特性
3.2.3风电站出力特性
3.3电力平衡
3.3.1辉县供电区大负荷电力平衡
3.3.2 220kV秋山供电区电力平衡
3.3.3 110kV环山变供电区电力平衡表
3.4 电量平衡
4接入系统方案论证
4.1接入系统方案
4.1.1 接入系统电压等级分析
4.1.2相关接入点分析
4.1.3接入系统导线初选
4.1.4接入系统方案拟定
4.2潮流计算及分析
4.2.1潮流计算条件
4.2.2潮流计算方式及结果分析
4.3短路电流计算
4.3.1短路电流计算条件
4.3.2短路电流计算阶段及总体说明
4.3.3计算结果
4.4稳定计算
4.4.1计算条件
4.4.2暂态稳定计算结果
4.5并网、解列点及计量
4.6 其他技术参数要求
4.6.1 断路器参数要求
4.6.2 10kV消弧线圈容量校核
4.6.3送出线路截面校核
5一次系统部分结论
附件1:河南省企业投资项目备案确认证明(项目代码2211-410782-04-01-440987)
附件2:《国网新乡供电公司关于印发河南省环山环保科技有限公司日产5500吨协同处置10万吨垃圾发电飞灰的水泥生产线项目接入系统方案审查意见的通知》(新电发展〔2022〕98号) 70
附图:
附图-X-01 2021年辉县供电区35kV及以上电网地理接线图
附图-X-02 2024年辉县供电区35kV及以上电网地理接线图
附图-X-03 2025年辉县供电区35kV及以上电网地理接线图
附图-X-04 2030年辉县供电区35kV及以上电网地理接线图
附图-X-05 接入系统方案示意图
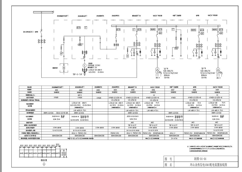
附图-D1-01 环山余热发电10kV配电装置接线图
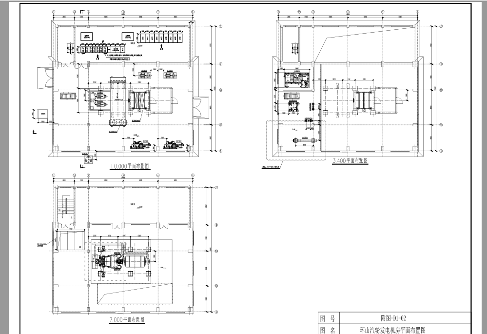
附图-D1-02 环山余热发电汽轮发电机房平面布置图
附图-D1-03 110kV环山变电气主接线图
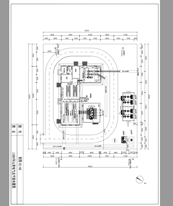
附图-D1-04 110kV环山变电气总平面布置图
附图-D1-05 110kV环山变10kV配电装置接线图(一)
附图-D1-06 110kV环山变10kV配电装置接线图(二)
附图-D1-07 110kV环山变10kV配电装置电气平面布置图












毕业66资料站 biye66.com ©2015-2026 版权所有 | 微信:15573586651 QQ:3903700237
本站毕业设计和毕业论文资料均属原创者所有,仅供学习交流之用,请勿转载并做其他非法用途.如有侵犯您的版权有损您的利益,请联系我们会立即改正或删除有关内容!