| 设计 任务书 文档 开题 答辩 说明书 格式 模板 外文 翻译 范文 资料 作品 文献 课程 实习 指导 调研 下载 网络教育 计算机 网站 网页 小程序 商城 购物 订餐 电影 安卓 Android Html Html5 SSM SSH Python 爬虫 大数据 管理系统 图书 校园网 考试 选题 网络安全 推荐系统 机械 模具 夹具 自动化 数控 车床 汽车 故障 诊断 电机 建模 机械手 去壳机 千斤顶 变速器 减速器 图纸 电气 变电站 电子 Stm32 单片机 物联网 监控 密码锁 Plc 组态 控制 智能 Matlab 土木 建筑 结构 框架 教学楼 住宅楼 造价 施工 办公楼 给水 排水 桥梁 刚构桥 水利 重力坝 水库 采矿 环境 化工 固废 工厂 视觉传达 室内设计 产品设计 电子商务 物流 盈利 案例 分析 评估 报告 营销 报销 会计 | |||||
|
|||||
|
|||||
|
|||||
本设计论文聚焦于同步带传输线入料设备的设计,旨在提升汽车凸轮轴等零部件的传输效率与准确性。随着工业4.0时代的到来,工业自动化已成为制造业转型升级的重要方向。同步带传输线以其高效、稳定、可靠的传输性能,在提高生产效率、降低人力成本方面具有重要意义。
本论文共分为七章,系统阐述了同步带传输线入料设备的设计过程。首先,在绪论中介绍了选题背景、目的及意义。接着,在方案设计阶段,通过查阅相关文献和资料,对同步带传输原理、设备结构及其关键参数进行了深入研究,并制定了合理的机械结构设计方案。在总体设计阶段,对现阶段同步带传输线入料设备的方式进行了对比分析,设计出了合理的结构总体方案。随后,在结构设计阶段,完成了电机的选型、同步带的设计或选型,并对关键零部件进行了必要的校核计算。此外,还详细说明了设备的性能特点,包括传输效率、稳定性、准确性等。
关键词:同步带传输线;入料设备;设计;汽车凸轮轴;工业自动化;生产效率
This design paper focuses on the design of synchronous belt transmission line feeding equipment to improve the transmission efficiency and accuracy of automotive camshaft and other parts. With the advent of the industry 4.0 era, industrial automation has become an important direction of the transformation and upgrading of the manufacturing industry. Synchronous band transmission performance, stable and reliable.
This paper is divided into seven chapters, systematically explaining the design process of synchronous belt transmission line feeding equipment. First, the background, purpose and significance of the topic are introduced in the introduction. Then, in the scheme design stage, through consulting the relevant literature and data, the principle of synchronous belt transmission, equipment structure and its key parameters were deeply studied, and a reasonable mechanical structure design scheme was formulated. In the overall design stage, the mode of the synchronous belt transmission line is analyzed, and a reasonable overall structure scheme is designed. Subsequently, in the structural design stage, the selection of the motor, the design or selection of the synchronous belt was completed, and the necessary check and calculation of the key components was made. In addition, also detail the performance characteristics of the equipment, including transmission efficiency, stability, accuracy and so on.
Key words: synchronous belt transmission line; feeding equipment; design; automotive camshaft; industrial automation and production efficiency
中文摘要
Abstract
第1章 引 言
1.1输送线的现状
1.2研究输送线的目的和意义:
1.3 国内外输送机械现代及发展趋势
第2章 方案设计
2.1 设计任务的分析
2.2 方案的设计
2.3凸轮轴入料设备设计
2.4链轮张紧装置的设计
第3章 同步传输线结构设计与驱动设计
3.1小车的设计
3.2大链轮的设计:
3.3 输送生产线的驱动设计
3.4 传动带轮设计
3.5大链轮轴系设计
3.6输送机架的设计
第4章 入料设备的设计
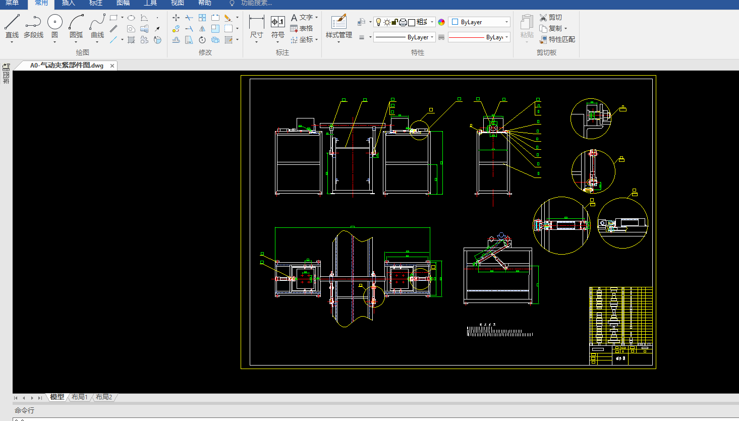
4.1打标夹紧气动回路设计
4.2气动夹紧元件的选择
第5章 同步带传输线的控制线路设计
5.1 PLC简介
5.2三菱系统下PLC的编程方法
5.3 PLC控制设计
毕业设计总结
主要参考文献
致谢


















毕业66资料站 biye66.com ©2015-2026 版权所有 | 微信:15573586651 QQ:3903700237
本站毕业设计和毕业论文资料均属原创者所有,仅供学习交流之用,请勿转载并做其他非法用途.如有侵犯您的版权有损您的利益,请联系我们会立即改正或删除有关内容!