| 设计 任务书 文档 开题 答辩 说明书 格式 模板 外文 翻译 范文 资料 作品 文献 课程 实习 指导 调研 下载 网络教育 计算机 网站 网页 小程序 商城 购物 订餐 电影 安卓 Android Html Html5 SSM SSH Python 爬虫 大数据 管理系统 图书 校园网 考试 选题 网络安全 推荐系统 机械 模具 夹具 自动化 数控 车床 汽车 故障 诊断 电机 建模 机械手 去壳机 千斤顶 变速器 减速器 图纸 电气 变电站 电子 Stm32 单片机 物联网 监控 密码锁 Plc 组态 控制 智能 Matlab 土木 建筑 结构 框架 教学楼 住宅楼 造价 施工 办公楼 给水 排水 桥梁 刚构桥 水利 重力坝 水库 采矿 环境 化工 固废 工厂 视觉传达 室内设计 产品设计 电子商务 物流 盈利 案例 分析 评估 报告 营销 报销 会计 | |||||
|
|||||
|
|||||
|
|||||
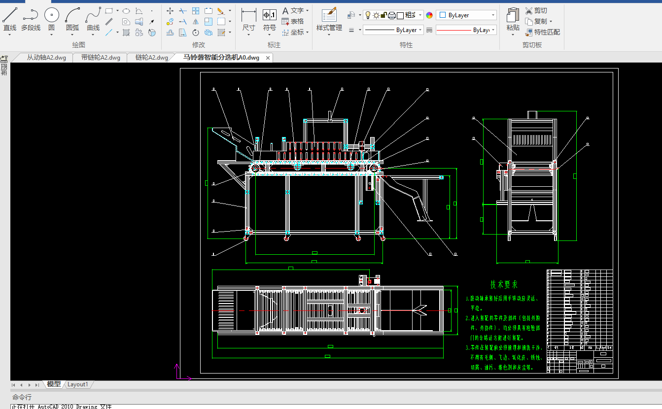
本文致力于马铃薯智能化分拣平台的设计与开发,旨在提升分拣效率、减少人工操作、降低马铃薯损伤,并推动马铃薯产业的自动化与智能化进程。文章首先构思了整体设计框架,分析了不同结构设计方案的优缺点,并最终选择了最优方案。接着,针对传动结构进行了深入研究与设计,确保满足设计参数要求。在智能分拣环节,设计了分拣装箱装置,确保分拣过程高效且不对马铃薯造成损伤。同时,设计了专用的马铃薯输送装置,实现了分拣后马铃薯的自由下落装箱过程。此外,平台机架采用铝合金材料,既满足了承载能力,又实现了轻量化。本研究为马铃薯智能化分拣平台的实际应用提供了理论支持与技术指导,对于提升我国马铃薯产业的生产效率与竞争力具有重要意义。
关键词:马铃薯智能化分拣;传动结构设计;分拣装箱装置;输送装置;机架设计
Abstract
This paper is committed to the design and development of potato intelligent sorting platform, aiming to improve the sorting efficiency, reduce manual operation, reduce potato damage, and promote the automation and intelligent process of potato industry. This paper first conceived the overall design framework, analyzes the advantages and disadvantages of different structural design schemes, and finally chooses the optimal scheme. Then, in-depth research and design for the transmission structure are conducted to ensure that the design parameters are met. In the intelligent sorting process, the sorting and packing device is designed to ensure that the sorting process is efficient and does not damage the potatoes. At the same time, a special potato delivery device is designed to realize the free falling and packing process of potato after sorting. In addition, the platform frame is made of aluminum alloy material, which not only meets the carrying capacity, but also realizes the lightweight. This study provides theoretical support and technical guidance for the practical application of the potato intelligent sorting platform, which is of great significance for improving the production efficiency and competitiveness of the potato industry in China.
Key words: potato sorting; drive structure design; sorting and packing device; conveying device and frame design
毕业论文(设计)独创性声明
毕业论文(设计)任务书
摘 要
Abstract
目 录
1 绪论
1.1 课题研究的意义和目的
1.2 国内外马铃薯智能化分拣平台的发展现状
1.2.1 国外马铃薯智能化分拣平台的发展现状
1.2.2 我国马铃薯智能分拣平台的发展现状
1.3 马铃薯智能化分拣平台设计的主要内容
1.4 马铃薯分拣装箱智能分拣机的主要技术参数
2 马铃薯智能化分拣平台总体的设计
2.1 总体方案设计
2.1.1 设计原则
2.1.2 基本结构
2.1.3 工作原理
2.2马铃薯智能化分拣平台机架的设计
3 马铃薯分拣平台传动结构的设计
3.1分拣机平台传动方案的分析
3.1.1常用的传动类型及特点
3.1.2机械传动系统设计时应注意的事项
3.2 传动方案的规划
3.2.1 链条传动概述
3.2.2 链条传动的特性
3.2.3 链条传动的潜在失效模式
3.3.4 链条设计原则
3.3.5 链条的分类
3.3传动系统的设计
3.3.1确定计算功率
3.3.2按接触强度进行初步计算
3.3.3按机齿根弯曲强度设计
3.3.4确定齿数
。 3.4电机的选择和计算
3.5轴的设计
3.5.1链轮上力的计算
3.5.2材料
3.5.3计算轴的最小直径
3.5.4轴的结构设计
3.6轴的校核
3.7键的校核
3.8轴承的校核
4 总体校核计算
4.1 马铃薯筛选机构的设计和计算
4.2 轨道转速的确定
4.3 功率计算
4.4 传动装置总效率和电动机功率
4.5 链轮的选择
4.6其它零件的设计计算
5结论
参考文献
致 谢
































毕业66资料站 biye66.com ©2015-2026 版权所有 | 微信:15573586651 QQ:3903700237
本站毕业设计和毕业论文资料均属原创者所有,仅供学习交流之用,请勿转载并做其他非法用途.如有侵犯您的版权有损您的利益,请联系我们会立即改正或删除有关内容!