| 设计 任务书 文档 开题 答辩 说明书 格式 模板 外文 翻译 范文 资料 作品 文献 课程 实习 指导 调研 下载 网络教育 计算机 网站 网页 小程序 商城 购物 订餐 电影 安卓 Android Html Html5 SSM SSH Python 爬虫 大数据 管理系统 图书 校园网 考试 选题 网络安全 推荐系统 机械 模具 夹具 自动化 数控 车床 汽车 故障 诊断 电机 建模 机械手 去壳机 千斤顶 变速器 减速器 图纸 电气 变电站 电子 Stm32 单片机 物联网 监控 密码锁 Plc 组态 控制 智能 Matlab 土木 建筑 结构 框架 教学楼 住宅楼 造价 施工 办公楼 给水 排水 桥梁 刚构桥 水利 重力坝 水库 采矿 环境 化工 固废 工厂 视觉传达 室内设计 产品设计 电子商务 物流 盈利 案例 分析 评估 报告 营销 报销 会计 | |||||
|
|||||
|
|||||
|
|||||
摘 要
塑料工业是当今世界上增长最快的工业门类之一,而注塑模具时期 中发展较快的种类,因此,研究注塑模具对了解塑料产品的生产过程和提高产品质量有很大的意义.
本设计介绍了注射成型的基本原理,特别是单分型面注射模具的结构与工作原理,对注塑产品提出了基本的设计原则;详细介绍了冷流道注射模具浇注系统、温度调节系统和顶出系统的设计过程,并对模具强度要求做了说明;
通过本设计,可以对注塑模具具有一个初步的认识,注意到设计中的某些细节问题,了解模具结构及工作原理.
关键词: 塑料模具 分型面 标准
ABSTRACT
Abstract Now The plastics industry in one of the growing quickest industry classes in the world, but the injection mole is develops the quick type .Therefore,There have biggist significance to research injection mold to understood that the plastic of production processimprove the product quality . This desin introduced the basic principle of infection molding,specially single is divided the profile to infect moles structurethe principle of work, That proposes the basic design principle of products; Introduched the details of the system that are cold folw channel infection of mold gating 、the temperature control systemthe design process of going against system ,has given the explanation to the mold intensity repuest; Through this design,may to cast the mold to have a preliminary understanding,motes some certain detail questions in design,understands the mold structurethe principle of working.
Key word: The plastic Mold Parting Line Standrad
目 录
第一章 绪 论..................................................1
1.1课题的来源和意义.............................................1
1.2国内发展状况.................................................1
1.3国外发展状况.................................................2
1.4本设计的目的和意义................. ................. ..... .3
第二章 塑件成型工艺分析........................................4
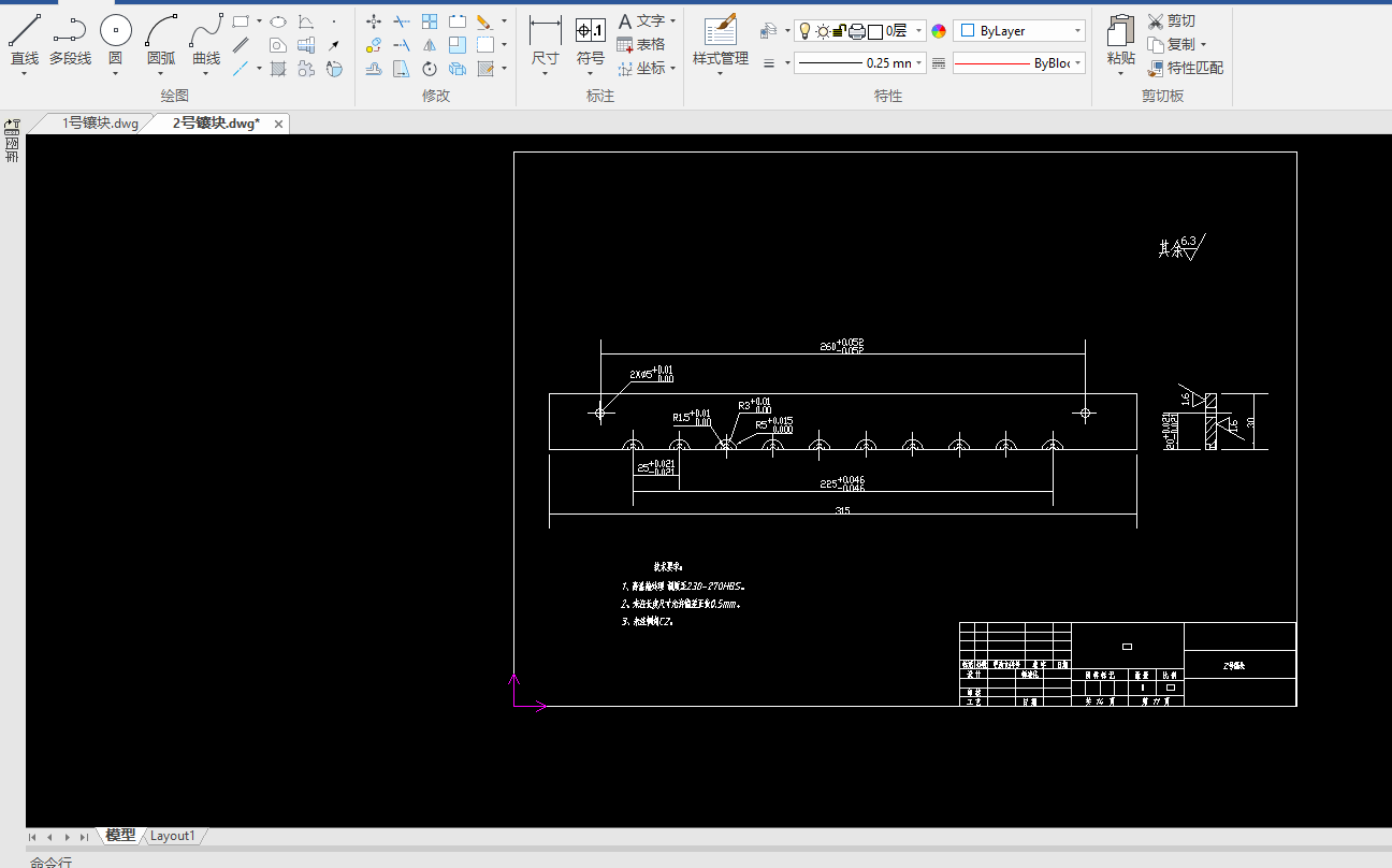
2.1塑件及材料的分析.............................................4
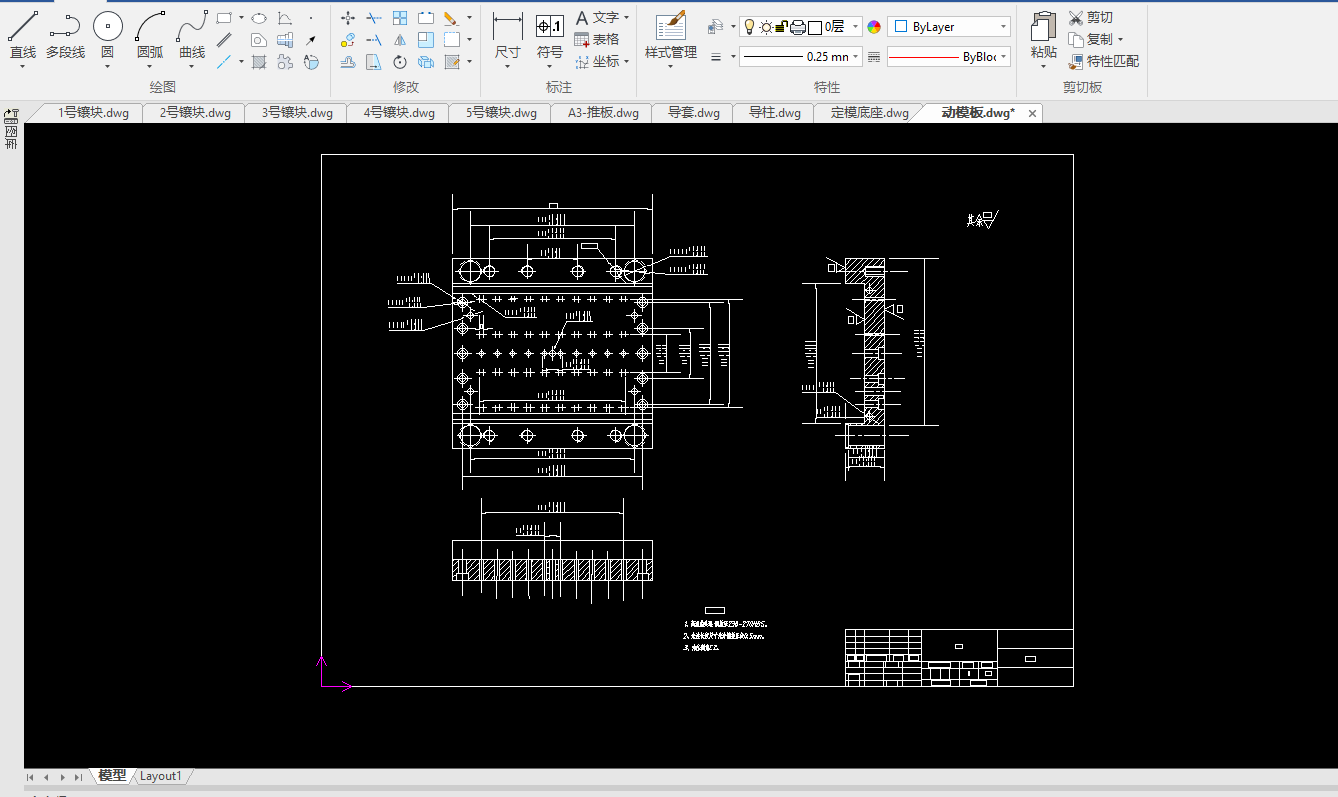
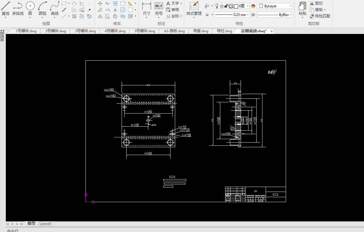
2.2拟定模具的结构形式...........................................6
2.3 浇注系统的设计...............................................6
第三章 结构设计及计算..........................................10
3.1成型零件的结构设计..........................................10
3.2成型零件刚才的选用...........................................10
3.3成型零件工作尺寸的确定.......................................10
3.4模架的确定...................................................11
3.5各模板尺寸的确定.............................................11
3.6排气槽的设计.................................................11
3.7脱膜推出机构的设计...........................................11
3.8冷却系统的设计...............................................12
3.9导向与定位机构的设计.........................................14
第四章 整体设计及小结..........................................15
4.1整体设计……………………………………………………………………15
4.2小结…………………………………………………………………………16
谢辞............................................................17
参考文献........................................................18































毕业66资料站 biye66.com ©2015-2026 版权所有 | 微信:15573586651 QQ:3903700237
本站毕业设计和毕业论文资料均属原创者所有,仅供学习交流之用,请勿转载并做其他非法用途.如有侵犯您的版权有损您的利益,请联系我们会立即改正或删除有关内容!