设计 任务书 文档 开题 答辩 说明书 格式 模板 外文 翻译 范文 资料 作品 文献 课程 实习 指导 调研 下载 网络教育 计算机 网站 网页 小程序 商城 购物 订餐 电影 安卓 Android Html Html5 SSM SSH Python 爬虫 大数据 管理系统 图书 校园网 考试 选题 网络安全 推荐系统 机械 模具 夹具 自动化 数控 车床 汽车 故障 诊断 电机 建模 机械手 去壳机 千斤顶 变速器 减速器 图纸 电气 变电站 电子 Stm32 单片机 物联网 监控 密码锁 Plc 组态 控制 智能 Matlab 土木 建筑 结构 框架 教学楼 住宅楼 造价 施工 办公楼 给水 排水 桥梁 刚构桥 水利 重力坝 水库 采矿 环境 化工 固废 工厂 视觉传达 室内设计 产品设计 电子商务 物流 盈利 案例 分析 评估 报告 营销 报销 会计
Logo 顶部广告
首页 | 机械毕业设计 | 电子电气毕业设计 | 计算机毕业设计 | 土木工程毕业设计 | 视觉传达毕业设计 | 理工论文 | 文科论文 | 毕设资料 | 帮助中心
今天是: |>>> 您现在的位置:首页>>>>文档详细内容
标题:

加工中心主传动系统的机械结构设计 说明书(论文)+CAD图纸+查重检测报告


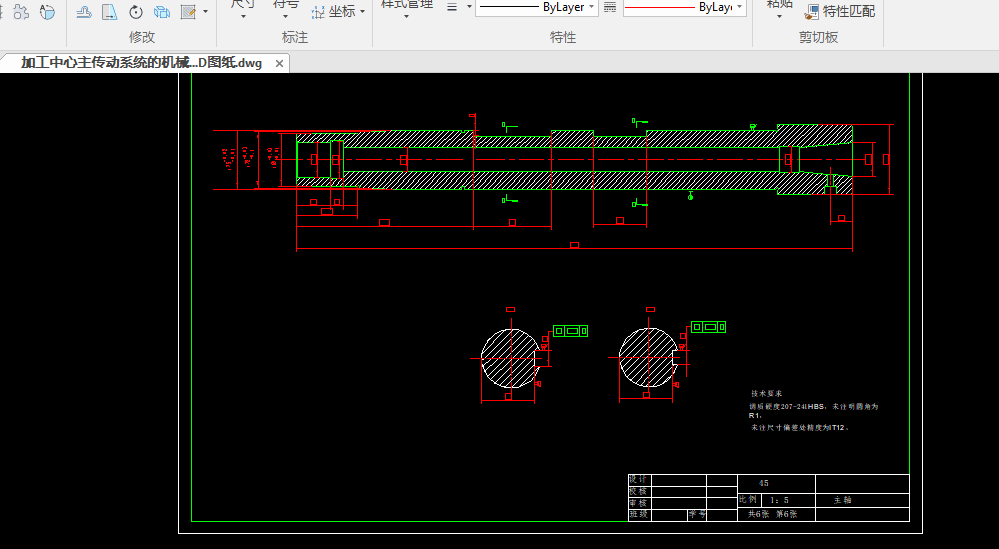
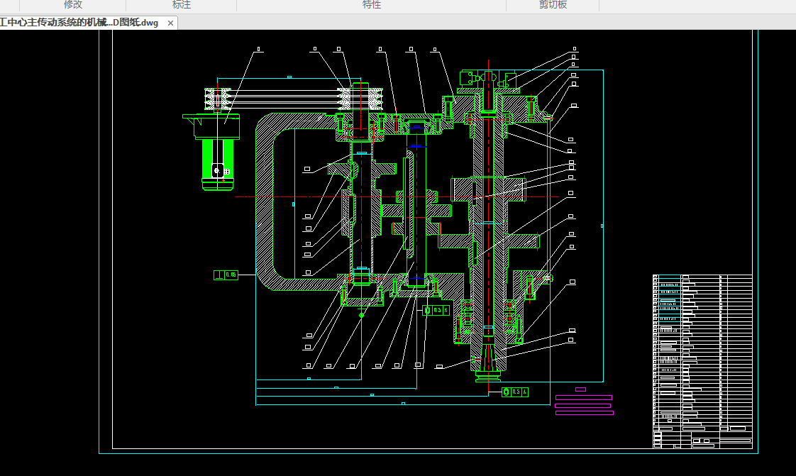
摘    要本毕设的主题是加工中心和主传动系统的机械设计计划。加工中间的机械动作控制是提高加工中间加工精度,特别是主传动系统机械布局加工精度的环节基础。因此,主传动系统的机械布置方案是否合理,加工精度是否满足方案要求,都对工艺的加工精度起着承上启下的作用。本项目计划开始时,通过对各种主传动系统的系统分析,以及配备电主轴的优良工艺技术,确定传动系统真值图,并设定工艺技术路径。第二分析中周速系统的特点,制定中周速系统的机械布置方案;并关注各传动部分的能量参数。接下来,分析主轴的要求,确定主轴的相关参数,如:扭转精度、静刚度等。从而从刀具、轴承、夹具号、传动部件以及放置在主轴上的其余部件等方面进行分析。体验相对轴承的例子,我们分析了每个轴承的特性,得出所需轴承满足要求的结论。考虑盒子中的部件和盒子的外部部分,并确定盒子的样式和大小,以确定盒子的布局。分析了组件的工作原理,并从需求出发。得出了这种总成的布局。最后绘制了中间主传动系统的机械布置图和装配图。关键词 传动系统;加工中心;机械设计;方案设计;布置AbstractThe theme of this project is the mechanical design plan of the machining center and the main transmission system.The mechanical action control in the machining middle is the basis of improving the machining intermediate machining accuracy, especially the mechanical layout machining accuracy of the main transmission system.Therefore, whether the mechanical layout scheme of the main transmission system is reasonable, whether the processing accuracy meets the requirements of the scheme, all play a connecting role in the processing accuracy of the process.At the beginning of the project, determine the true value map of the transmission system and set the process and technical path.Analysis of the characteristics of the speed system, develop the mechanical arrangement of the system; and pay attention to the energy parameters of each transmission part.Next, the requirements of the spindle are analyzed to determine the relevant parameters of the spindle, such as: torsion accuracy, static stiffness, etc.Thus from the tool, bearings, clamp number, transmission components and the rest of the components placed on the spindle analysis.Experience the example of relative bearings, we analyze the characteristics of each bearing and conclude that the required bearings meet the requirements.Consider the parts in the box and the outer parts of the box, and determine the style and size to determine the layout of the box.The working principle of the components are analyzed and started from the requirements.The layout of this assembly is obtained.Finally, the mechanical layout and assembly diagram of the intermediate main transmission system are drawn.Key words drive system; machining center; mechanical design; scheme design; layout目       录摘要 IAbstract II1绪论 11.1 加工中心的组成 11.2 加工中心的特点 22 确定主传动系统设计方案,拟定传动原理图 32.1 确定设计方案 32.1.1加工中心主传动系统简介 32.1.2对加工中心主传动系统的要求 32.2拟定传动原理图 42.2.1主传动系统主要类型 42.2.2拟定传动原理图 53 运动设计和动力设计 73.1 运动设计 73.1.1 传动方案设计 73.1.2转速调速范围 73.1.3根据计算得出三个档次速度变化组 73.1.4 结构式采用 73.1.5 绘制转速图 73.1.6 确定变速组齿轮齿数 83.1.7 传动系统图 83.1.8 带轮设计 83.1.9 计算带的张紧力F0作用在轴上的压轴力FQ 103.2  动力设计 113.2.1 传动件的计算转速 113.2.2 计算各传动轴的输出功率 113.2.3 计算各传动轴的扭矩 123.2.4 轴径设计及键的选取 123.2.5 计算齿轮模数 133.2.6 齿轮校核 144主轴和轴的结构设计、精度设计和刚度设计 174.1 主轴的要求 174.1.1 旋转精度 174.1.2 静刚度 174.1.3 抗振性 174.1.4 升温和热变形 174.1.5 耐磨性 184.1.6 材料和热处理 184.1.7 主轴的结构 184.2 主要参数的确定 194.2.1 主轴前轴颈直径D1的选取 194.2.2 主轴内孔直径d的确定 194.2.3主轴前端悬伸量a的确定 194.2.4 主轴主要支承间跨距L的确定 204.3  主轴的构造 224.4  轴上零件的定位 224.4.1零件的轴向定位 224.4.2零件的周向定位 234.5  主轴的校核 234.5.1主轴按扭转强度校核 234.5.2主轴的扭转刚度校核 234.6  主轴的主轴组件的刚度验算 245 轴承选用与寿命计算 285.1 滚动轴承的主要类型、性能与特点 285.1.1向心轴承 285.1.2推力轴承 285.1.3 滚子动轴承 285.2 轴承的选取 295.3 寿命计算 295.3.1 基本额定寿命和基本额定动载荷 295.3.2 滚动轴承疲劳寿命计算的基本公式 306主轴箱体结构设计和精度设计 336.1 箱体基本知识 336.1.1箱体的主要功能 336.1.2箱体的分类 336.2 设计的主要问题和设计要求 336.2.1满足强度和刚度要求 336.2.2散热性能和热变形问题 346.2.3结构设计合理 346.2.4工艺性好 346.3  主轴箱体结构设计 346.3.1箱体的毛坯、材料及热处理 346.3.2箱体结构参数的选择 357刀具夹紧装置设计 387.1 刀具自动夹紧机构 387.2 刀具夹紧装置的工作原理 388绘制主传动系统装配图和零件图 39结论 41致谢 42参考文献 43















| 关于我们 | 友情链接 | 毕业设计招聘 |

毕业66资料站 biye66.com ©2015-2026 版权所有 | 微信:15573586651 QQ:3903700237

本站毕业设计和毕业论文资料均属原创者所有,仅供学习交流之用,请勿转载并做其他非法用途.如有侵犯您的版权有损您的利益,请联系我们会立即改正或删除有关内容!