| 设计 任务书 文档 开题 答辩 说明书 格式 模板 外文 翻译 范文 资料 作品 文献 课程 实习 指导 调研 下载 网络教育 计算机 网站 网页 小程序 商城 购物 订餐 电影 安卓 Android Html Html5 SSM SSH Python 爬虫 大数据 管理系统 图书 校园网 考试 选题 网络安全 推荐系统 机械 模具 夹具 自动化 数控 车床 汽车 故障 诊断 电机 建模 机械手 去壳机 千斤顶 变速器 减速器 图纸 电气 变电站 电子 Stm32 单片机 物联网 监控 密码锁 Plc 组态 控制 智能 Matlab 土木 建筑 结构 框架 教学楼 住宅楼 造价 施工 办公楼 给水 排水 桥梁 刚构桥 水利 重力坝 水库 采矿 环境 化工 固废 工厂 视觉传达 室内设计 产品设计 电子商务 物流 盈利 案例 分析 评估 报告 营销 报销 会计 | |||||
|
|||||
|
|||||
|
|||||
组合钻床动力滑台液压传动系统的设计
摘要:现如今,在机械设计制造中应用液压机械传动控制系统是势在必行的。基于此,本文以液压机械传动控制系统在机械设计及制造中的应用为研究对象,针对一台单面多轴卧式组合钻床,设计其动力滑台的液压传动系统,分析了组合机床动力滑台的工作要求,使机床液压传动系统满足工件加工时的快进,工进1,工进2,快退,停的工作任务.通过对比分析及借助拆装式液压系统教学实验平台的模拟工况分析并确定了最佳改造方案,改造后的液压系统提高了动力滑台的运动平稳性,减少了油路的元件数量,简化了系统结构,极大地提高了生产效率。分析液压油的过滤方案延长了液压油的更换周期,可以节约成本。
关键词:组合钻床;动力滑台;液压系统;传动系统;集成块
Design of Hydraulic Transmission System for Power Sliding Platform of Combined Drilling Machine
Absrtact: nowadays, it is imperative to apply hydraulic mechanical transmission control system in mechanical design and manufacture. Based on this, this paper takes the application of hydraulic mechanical transmission control system in mechanical design and manufacture as the research object, designs the hydraulic transmission system of a single-sided multi-axis horizontal combined drilling machine, horizontal combined drilling machine, and analyzes the working requirements of the power slide table of the combined machine tool. Through the comparative analysis and the simulation condition analysis of the teaching experimental platform of the disassembly hydraulic system, the optimal transformation scheme is determined. The modified hydraulic system improves the motion stability of the power slide table and reduces the number of components in the oil circuit. Simplified system structure, greatly improve production efficiency. The analysis of the filter scheme of hydraulic oil prolongs the replacement cycle of hydraulic oil and can save cost.
Keywords: combined drilling machine; power slide table; hydraulic system; transmission system; integrated block
目 录
第1章 绪论
1.1 选题背景及意义
1.2 发展现状
1.3 设计要求主要参数
第2章 负载与运动分析计算
2.1 该组合机床的主参数分析
2.2 液压缸速度控制图以及受力图
第3章 液压传动系统动力元件的选用
3.1 液压缸活塞参数的确定
3.2 液压泵的选用
3.3 液压泵驱动电机的选用
3.4 油管的设计选用
3.5 其他液压元件的选用
第4章 液压传动系统图设计
4.1 液压调速回路的选择
4.2 液压传动系统调压回路的设计
4.3 液压传动系统换向回路的设计
4.4 液压传动系统原理图设计
4.5 液压传动系统工作过程
4.5.1 液压缸快进工况
4.5.2 液压缸一工进工况
4.5.3液压缸二工进工况
4.5.4 液压缸保压工况
4.55 液压缸快退工况
4.5.6 卸荷回路
第5章 其他零部件设计
5.1 板式连接集成块设计
5.1.1 液压传动系统机构选择
5.1.2 板式连接集成块设计
5.1.3 集成块的优化
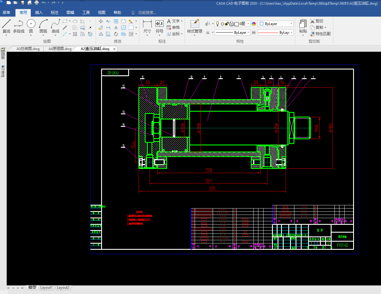
5.2 液压缸的设计
5.2.1 缸筒结构的设计
5.2.2 油缸缸筒材料的要求
5.2.3 油缸壁厚计算以及验算
5.2.4 液压缸总长度计算
5.3 液压传动系统油箱的设计
5.3.1 油箱的容量设计
5.3.2 油箱的结构设计
5.3.4 系统油液温升计算
总 结
参考文献
致 谢















毕业66资料站 biye66.com ©2015-2026 版权所有 | 微信:15573586651 QQ:3903700237
本站毕业设计和毕业论文资料均属原创者所有,仅供学习交流之用,请勿转载并做其他非法用途.如有侵犯您的版权有损您的利益,请联系我们会立即改正或删除有关内容!