| 设计 任务书 文档 开题 答辩 说明书 格式 模板 外文 翻译 范文 资料 作品 文献 课程 实习 指导 调研 下载 网络教育 计算机 网站 网页 小程序 商城 购物 订餐 电影 安卓 Android Html Html5 SSM SSH Python 爬虫 大数据 管理系统 图书 校园网 考试 选题 网络安全 推荐系统 机械 模具 夹具 自动化 数控 车床 汽车 故障 诊断 电机 建模 机械手 去壳机 千斤顶 变速器 减速器 图纸 电气 变电站 电子 Stm32 单片机 物联网 监控 密码锁 Plc 组态 控制 智能 Matlab 土木 建筑 结构 框架 教学楼 住宅楼 造价 施工 办公楼 给水 排水 桥梁 刚构桥 水利 重力坝 水库 采矿 环境 化工 固废 工厂 视觉传达 室内设计 产品设计 电子商务 物流 盈利 案例 分析 评估 报告 营销 报销 会计 | |||||
|
|||||
|
|||||
|
|||||
目 录
第1章前言 1
第2章 总体方案论证 2
2.1 设计选型原则 2
2.2 设计内容 3
第3章 主要尺寸参数的选定 3
3.1 外廓尺寸 3
3.2 质量参数 3
第4章 车架总成设计 4
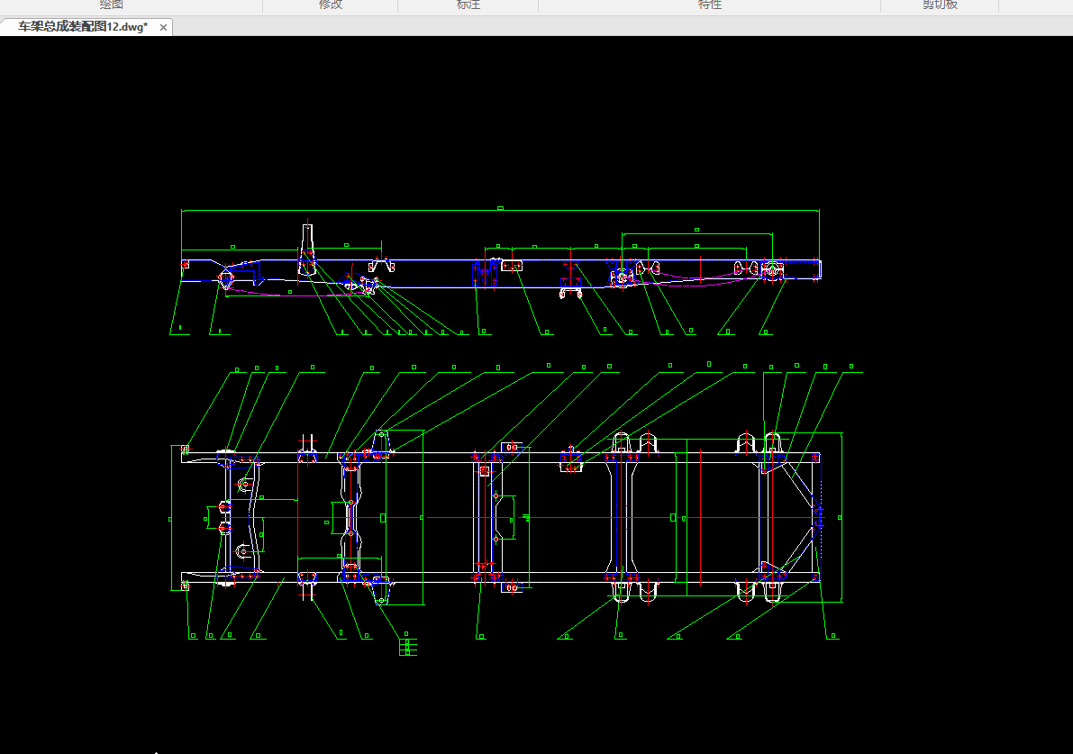
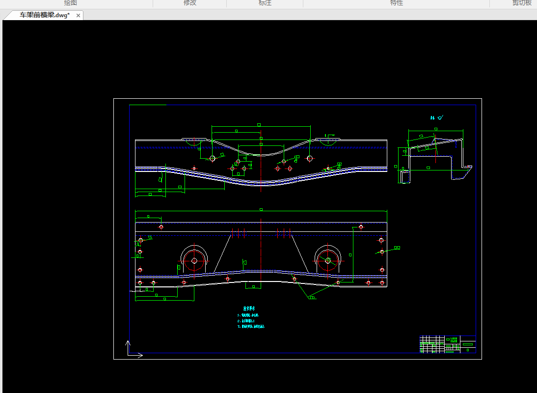
4.1 车架的结构设计 4
4.2 车架的技术要求 5
第5章 车架的设计计算 6
5.1车架的计算 6
5.2 车架载荷分析 8
5.3 车架弯曲强度的计算 8
5.4 车架扭转应力的计算 11
第6章 悬架的总成设计 14
6.1悬架的设计要求 14
6.2悬架的两种形式 14
6.3悬架主要参数的确定 17
6.4钢板弹簧的设计 20
结论23
参 考 文 献 24
致 谢 25
附 录
第1章 前言
车架和悬架系统是汽车设计的重要部分,因为它们的好坏直接关系到汽车各个方面(操控、性能、安全、舒适)性能。
现代汽车绝大多数都具有作为整车骨架的车架。汽车绝大多数部件和总成都是通过车架来固定其位置的,如发动机、传动系统、悬架、转向系统、驾驶室、货箱和有关操纵机构。车架是支撑连接汽车的各零部件,并承受来自车内、外的各种载荷,所以在车辆总体设计中车架要有足够的强度和刚度,以使装在其上面的有关机构之间的相对位置在汽车行驶过程中保持不变并使车身的变形最小,车架的刚度不足会引起振动和噪声,也使汽车的乘坐舒适性、操纵稳定性及某些机件的可靠性下降。过去对车辆车架的设计与计算主要考虑静强度。当今,对车辆轻量化和降低成本的要求越来越高,于是对车架的结构形式设计有高的要求。首先要满足汽车总布置的要求。汽车在复杂多边的行驶过程中,固定在车架上的各总成和部件之间不应发生干涉。汽车在崎岖不平的道路上行驶时,车架在载荷作用下可能产生扭转变形以及在纵向平面内的弯曲变形;车架布置的离地面近一些,以使汽车重心位置降低,有利于提高汽车的行驶稳定性。
悬架是车架(或承载式车身)与车桥(或车轮)之间的一切传力连接装置的总称。它的功用是把路面作用于车轮上的垂直反力(支撑力)、纵向反力(驱动力和制动力)和侧向反力以及这些反力所造成的力矩传递到车架(或承载式车身)上,以保证汽车的正常行驶。在进行设计时,要满足以下几点要求:
a.规范合理的型式和尺寸选择,结构和布置合理。
b.保证整车良好的平顺性能。
c.工作可靠,结构简单,装卸方便,便于维修、调整。
d.尽量使用通用件,以便降低制造成本。
e.在保证功能和强度的要求下,尽量减小整备质量。
f.其它有关产品技术规范和标准。
目前,农用运输车不能满足“三农”市场需求,突出表现为一般产品生产能力过剩,技术水平低,质量和维修服务水平差,价格较高,而市场急需的高质量经济型产品不能满足需求。结合生产实际,在农用运输车基础上对低速载货汽车车架及悬架系统进行了设计。










毕业66资料站 biye66.com ©2015-2026 版权所有 | 微信:15573586651 QQ:3903700237
本站毕业设计和毕业论文资料均属原创者所有,仅供学习交流之用,请勿转载并做其他非法用途.如有侵犯您的版权有损您的利益,请联系我们会立即改正或删除有关内容!