| 设计 任务书 文档 开题 答辩 说明书 格式 模板 外文 翻译 范文 资料 作品 文献 课程 实习 指导 调研 下载 网络教育 计算机 网站 网页 小程序 商城 购物 订餐 电影 安卓 Android Html Html5 SSM SSH Python 爬虫 大数据 管理系统 图书 校园网 考试 选题 网络安全 推荐系统 机械 模具 夹具 自动化 数控 车床 汽车 故障 诊断 电机 建模 机械手 去壳机 千斤顶 变速器 减速器 图纸 电气 变电站 电子 Stm32 单片机 物联网 监控 密码锁 Plc 组态 控制 智能 Matlab 土木 建筑 结构 框架 教学楼 住宅楼 造价 施工 办公楼 给水 排水 桥梁 刚构桥 水利 重力坝 水库 采矿 环境 化工 固废 工厂 视觉传达 室内设计 产品设计 电子商务 物流 盈利 案例 分析 评估 报告 营销 报销 会计 | |||||
|
|||||
|
|||||
|
|||||
摘 要
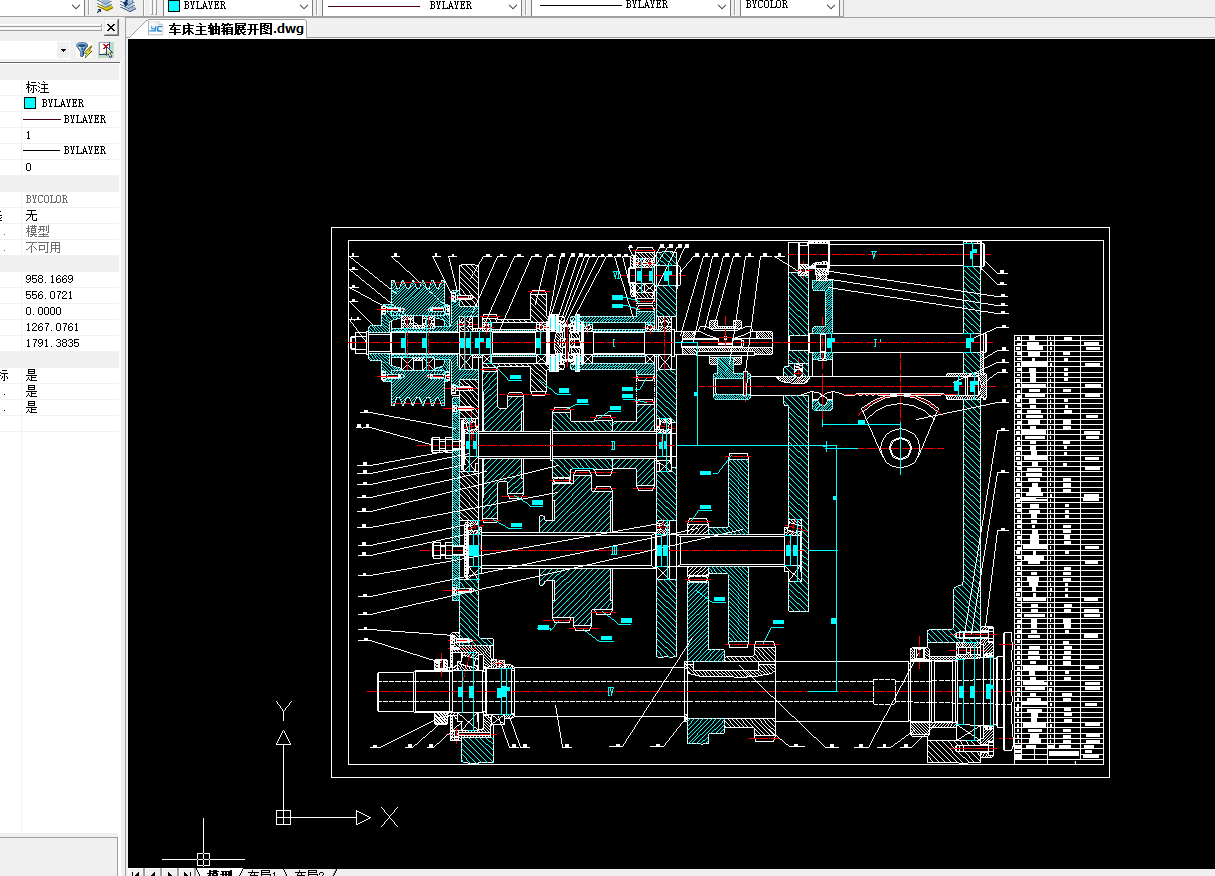
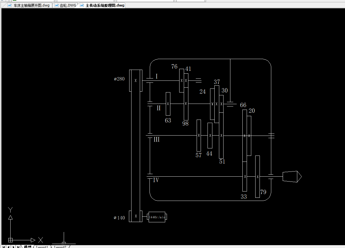
随着机床行业向着高速度、高精度加工趋势的快速转变,机床的结构优化在国内机械行业内引起了广泛的关注。主轴箱是机床系统中十分重要的部分,主轴箱的结构设计直接影响到工件的加工质量和加工效率。一种套装轴式的主轴箱结构,通过与传统主轴箱的结构进行比较,其结构更为紧凑,最重要的是这种紧凑质量轻的结构可以提供高效率,同时最大限度地降低了震动和噪声。本次设计主要对分级变速系统的内在规律(传动副与转速级数的确定、结构式的拟定、变速组的变速范围)。主传动系统分级变速系统拟定(公比、转速级数及转速数列:传动方案及结构形式;确定各变速组的最小传动比,画出转速图)。确定齿轮齿数,齿轮的结构布置,传动件的计算转速及其确定(主传动系统的功率特性及计算转速;主轴及其它传动件计算转速),传动系统的设计(皮带轮及皮带;各传动轴、齿轮的受力分析、刚度、强度计算及分析;传动轴、齿轮的结构设计;以及箱体设计。
关键词:车床 铣床 主轴 齿轮
目 录
1.车床参数和基本参数 1
1.1主轴的极限转速 1
1.2主轴转速级数Z和公比1
1.3主电机功率――动力参数的确定 2
2.运动设计 3
2.1传动结构式、结构网的选择确定 3
2.1.1传动组及各传动组中传动副的数目 3
2.1.2 传动系统扩大顺序的安排 3
2.1.3 绘制结构网 4
2.1.4 传动组的变速范围的极限值 5
2.1.5最大扩大组的选择 5
2.2转速图的拟定 6
2.3 由转速图确定各轴及各齿轮计算转速 7
3.带轮的选择和直径计算 9
3.1选择三角带型号及带轮直径的确定 9
3.2确定三角带速度v 9
3.3初定中心距A0 9
3.4确定三角带的计算长度L0及内周长LN 9
3.5验算三角带的挠曲次数 10
3.6确定实际中心距 10
3.7验算最小包角 10
3.8确定三角带根数 10
4.齿轮齿数的确定及计算 11
4.1验算主轴转速误差 13
4.2齿轮的布置 14
4.3 齿轮模数的估算 14
4.4 齿轮分度圆直径及(轴)中心距的估算 17
5.主轴及其组件的设计 19
5.1主轴直径的选择 19
5.2主轴内径的选择 19
5.3前锥孔尺寸 19
5.4主轴前端悬伸量的选择 19
5.5支承跨距及悬伸长度 20
5.6头部尺寸的选择 20
5.7主轴材料与热处理 20
5.8主轴轴承 20
6.传动轴的估算 21
7.片式摩擦离合器的选择和计算 23
参考文献 25
由设计任务书可知:机床主轴的极限转速为:
级数z=12
公比=1.41
机功率P=7.5KW
则其最大转速
查标准数列取
考虑到设计的结构复杂程度要适中,故采用常规的扩大传动分级变速,并选取级数z=12,设其转速公比为1.41。则由式:
各级转速数列由标准数列表中查出,因=1.41=,首先找到35,然后每隔5个数取一个值,可得如下转速数列:32.5、50、71、100、140、200、280、400、560、800、1120、1360共12级转速。
已知
==
且Z=x3b
a、b为正整数,即Z应可以分解为2和3的因子,以便用2、3联滑移齿轮实现变速。(如取4或5的因子,则要用两个互锁的滑移齿轮,以确保只有一对齿轮啮合。使得结构过于复杂且不易控制。)
取Z=12级 则Z=22
=1360=32.5==45.7
综合上述可得:主传动部件的运动参数
=1360=32.5Z=12=1.40














毕业66资料站 biye66.com ©2015-2026 版权所有 | 微信:15573586651 QQ:3903700237
本站毕业设计和毕业论文资料均属原创者所有,仅供学习交流之用,请勿转载并做其他非法用途.如有侵犯您的版权有损您的利益,请联系我们会立即改正或删除有关内容!