| 设计 任务书 文档 开题 答辩 说明书 格式 模板 外文 翻译 范文 资料 作品 文献 课程 实习 指导 调研 下载 网络教育 计算机 网站 网页 小程序 商城 购物 订餐 电影 安卓 Android Html Html5 SSM SSH Python 爬虫 大数据 管理系统 图书 校园网 考试 选题 网络安全 推荐系统 机械 模具 夹具 自动化 数控 车床 汽车 故障 诊断 电机 建模 机械手 去壳机 千斤顶 变速器 减速器 图纸 电气 变电站 电子 Stm32 单片机 物联网 监控 密码锁 Plc 组态 控制 智能 Matlab 土木 建筑 结构 框架 教学楼 住宅楼 造价 施工 办公楼 给水 排水 桥梁 刚构桥 水利 重力坝 水库 采矿 环境 化工 固废 工厂 视觉传达 室内设计 产品设计 电子商务 物流 盈利 案例 分析 评估 报告 营销 报销 会计 | |||||
|
|||||
|
|||||
|
|||||
我为家乡做贡献-镇中心某小型宾馆建筑结构设计
中文摘要
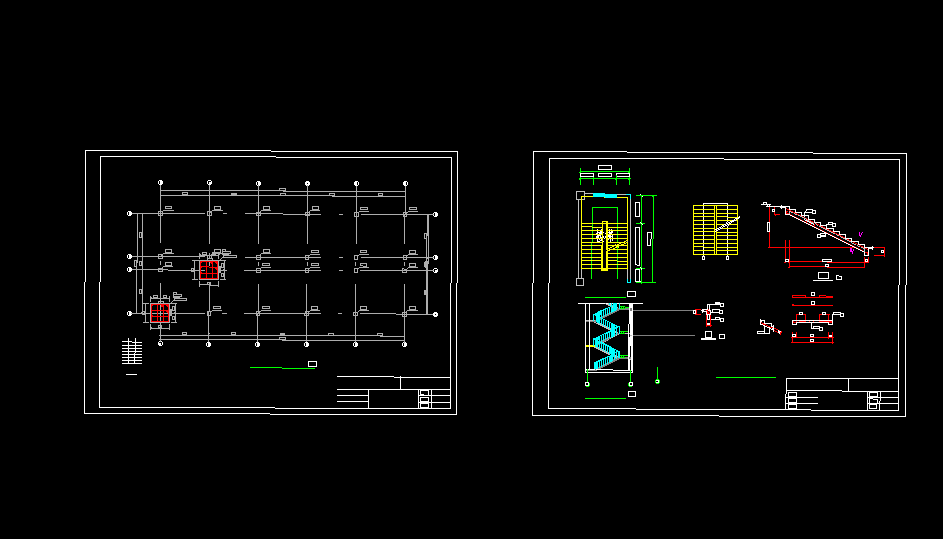
本设计题目为“我为家乡做贡献-镇中心某小型宾馆建筑结构设计”。该工程为全现浇五层钢筋混凝土框架结构,抗震设防烈度为七度,灌注桩基础。
本设计包括建筑设计和结构设计两部分。建筑设计包括总平面图设计,底层和标准层平面图设计、立面图设计,并绘制了相关的建筑施工图。
结构设计以手算为主,主要以横向一榀框架的内力计算和配筋为主。计算内容包括重力荷载计算,框架刚度计算,水平荷载作用下框架结构的内力和侧移计算、竖向荷载作用下框架结构的内力计算、内力组合、框架梁柱的截面配筋计算、罕遇地震作用下弹塑性变形验算、楼梯和楼板的配筋计算以及基础设计。绘制了基础平面布置图、所计算横向一榀框架的基础详图和配筋图,标准层柱、梁平法配筋图,标准层楼板和楼梯的配筋图等。
[关键词] 框架结构; 抗震设计; 桩基础;楼板和楼梯配筋计算
I contribute to my hometown-the design of a small hotel Chinese
[Abstract]The title of this design is "I contribute to my hometown- -the architectural structure design of a small hotel in the town center".The project is a fully cast-in-place five-story reinforced concrete frame structure, with a seismic fortification intensity of seven degrees, and a cast-in-place pile foundation.
This design includes two parts: architectural design and structural design.The building design includes the general plan design, the ground floor and standard floor plan design, the elevation design, and draws the relevant building construction drawings.
The structure design is mainly manual calculation, mainly based on the internal force calculation and reinforcement of a transverse frame.The calculation content includes gravity load calculation, frame stiffness calculation, internal force and lateral shift calculation of frame structure under horizontal load, vertical load calculation, internal force combination, section reinforcement calculation of frame beam and column, elastic and plastic deformation test calculation, stair and floor reinforcement calculation and combination of foundation design.The foundation layout plan, the foundation details of the frame and reinforcement drawing of the calculated horizontal frame, the standard column, beam and flat method, and the reinforcement diagram of the standard floor and stairs, etc.
[Keywords] Frame structure; seismic design; pile foundation; floor and stair reinforcement calculation
目 录
中文摘要
1 引 言
1.1 毕业设计的目的
1.2 设计资料
1.2.1 设计依据
1.2.2 建筑规模与要求
1.2.3 结构型式
1.3 设计内容及深度要求
1.3.1 建筑设计部分
1.3.2 结构设计部分
1.4 设计成果形式及要求,详见下表
2建筑设计说明
2.1 设计基本资料
2.1.1 工程概况
2.1.2 原始设计资料
2.2 建筑设计说明
2.2.1 设计概要
2.2.2 建筑立面剖面设计
2.2.3装饰
2.2.4抗震设计
2.2.5楼梯的设计
2.2.6关于防火的设计
2.2.7细部构造总说明
2.3 建筑细部具体构造做法
3 结构设计
3.1 结构布置及计算简图的确定
3.1.1 选择承重方案
3.1.2 梁、柱截面尺寸估算
3.1.3 结构计算简图
4 荷载计算
4.1 屋面及楼面永久荷载标准值
4.2 屋面及楼面可变荷载标准值
4.3 梁、柱、墙、窗、门重力荷载计算
4.3.1 梁自重计算
4.4 计算重力荷载代表值
4.4.1 第5层的重力荷载代表值
4.4.2 2~4层的重力荷载代表值
4.4.3 一层的重力荷载代表值
4.4.4 各层重力荷载计算
5 横向框架侧移刚度计算
5.1 计算梁、柱的线刚度
5.2 计算柱的侧移刚度
6 横向水平荷载作用下框架结构的内力和侧移计算
6.1横向水平地震作用下的框架结构的内力计算和侧移计算
6.1.1 横向自振周期的计算
6.1.2 水平地震作用及楼层地震剪力计算
6.1.3 水平地震作用下的位移验算
6.1.4 水平地震作用下框架内力计算
6.2 横向风荷载作用下框架结构内力和侧移计算
6.2.1 风荷载标准值
6.2.2 风荷载作用下的水平位移验算
7 竖向荷载作用下横向框架结构的内力计算
7.1 计算单元
7.2 荷载计算
7.2.1 恒载计算
7.2.2活荷载计算
7.2.3屋面雪荷载标准值
7.3 内力计算
7.3.1计算分配系数
7.3.2 用弯矩二次分配法来计算恒载作用下的梁端、柱端弯矩
7.3.3 计算恒载和活载作用下梁端剪力和柱轴力
8 框架内力组合
8.1 结构抗震等级
8.2 框架梁内力组合
8.2.1作用效应组合
8.2.2承载力抗震调整系数
8.2.3梁的控制截面内力组合值
8.2.4梁内力组合表
8.3框架柱内力组合
8.3.1柱内力组合
8.3.2 柱端弯矩值设计值的调整
9 截面设计
9.1梁截面设计
9.1.1正截面受弯承载力计算
9.1.2斜截面受弯承载力计算
梁斜截面配筋计算表
9.2柱截面设计
9.2.1已知条件
9.2.2构造要求
9.2.3剪跨比和轴压比验算
9.2.4柱正截面承载力计算
9.2.5柱斜截面承载力计算
+
(ASV)/s)
λvfc/fyv(%)
+
(ASV)/S)
λVfC/fyV(%)
10楼板计算
10.1标准层楼板计算
10.2屋面板设计
11 楼梯设计
11.1 底层楼梯设计
11.1.1梯段板TB1设计
11.1.2平台板PTB1设计
2)截面设计
11.1.3平台梁TL1设计
11.2其他层楼梯设计
11.2.1梯段板TB2设计
11.2.2平台板PTB2设计
11.2.3平台梁TL2设计
11.2.4平台梁TL3设计
12 基础设计
12.1基础梁截面尺寸的选取
12.2荷载选用
12.3基础截面计算
12.4地基承载力及基础冲切验算
12.4.1地基承载力验算
12.4.2 冲切验算
12.5基础底板配筋计算
[参考文献]
总 结
致 谢




















毕业66资料站 biye66.com ©2015-2026 版权所有 | 微信:15573586651 QQ:3903700237
本站毕业设计和毕业论文资料均属原创者所有,仅供学习交流之用,请勿转载并做其他非法用途.如有侵犯您的版权有损您的利益,请联系我们会立即改正或删除有关内容!