| 设计 任务书 文档 开题 答辩 说明书 格式 模板 外文 翻译 范文 资料 作品 文献 课程 实习 指导 调研 下载 网络教育 计算机 网站 网页 小程序 商城 购物 订餐 电影 安卓 Android Html Html5 SSM SSH Python 爬虫 大数据 管理系统 图书 校园网 考试 选题 网络安全 推荐系统 机械 模具 夹具 自动化 数控 车床 汽车 故障 诊断 电机 建模 机械手 去壳机 千斤顶 变速器 减速器 图纸 电气 变电站 电子 Stm32 单片机 物联网 监控 密码锁 Plc 组态 控制 智能 Matlab 土木 建筑 结构 框架 教学楼 住宅楼 造价 施工 办公楼 给水 排水 桥梁 刚构桥 水利 重力坝 水库 采矿 环境 化工 固废 工厂 视觉传达 室内设计 产品设计 电子商务 物流 盈利 案例 分析 评估 报告 营销 报销 会计 | |||||
|
|||||
|
|||||
|
|||||
摘 要
污水处理及再生水工程,承担着雄安新区污水处理和再生水回用任务,是新区重要的生态工程。据统计,城市中人均每天排出的城镇生活污水总量约为150~400L,污水的水量和水质与当地人们的生活水平密切相关.若不进行妥善收集处理,城镇生活污水不但会对下游城镇的水源造成污染,造成水体环境逐渐恶化,还会给城镇生活污水的处理工作增加负担.总而言之,城镇生活污水的处理问题与广大群众的日常生活具有紧密的联系。
为解决河北雄安新区城镇当地的污水处理状况,提出相应的污水处理技术,拟建一座污水厂。本次设计选用A2/O工艺处理生活污水,设计规模为10万m3/d。设计需去除BOD,SS,N,P等,出水要达到《城镇污水处理厂污染物排放标准》(GB18918-2002)中的一级A标准.污水首先经过粗细两道格栅,沉砂池去除大部分的悬浮物及漂浮物,再进入A2/O池进行生物处理去除BOD,氮,磷等,之后污水进入沉淀池进行泥水分离,随后污水经过消毒后出水。
关键词:污水处理;方案设计;工艺流程;工艺计算
Abstract
Sewage treatment and reclaimed water project is an important ecological project in Xiong'an New area. According to statistics, the total amount of municipal domestic sewage discharged per person per day in the city is about 150~400 L, The quantity and water quality of sewage are closely related to the living standard of local people. Without proper collection and treatment, urban domestic sewage will not only pollute the water source of downstream towns, cause the water environment to deteriorate gradually, but also increase the burden on the treatment of urban domestic sewage. In a word, the treatment of urban domestic sewage is closely related to the daily life of the masses.
In order to solve the local sewage treatment situation in Xiong'an New District of Hebei Province, a sewage treatment plant is proposed. This design selects the A2/O craft to treat the domestic sewage, the design scale is 100,000 m3/d.!2 The design needs to remove the BOD,SS,N,P, and the effluent should meet the first class A standard in the pollutant discharge standard (GB18918-2002) of the municipal sewage treatment plant. The sewage first passes through two grille, the sand settling tank removes most of the suspended matter and floating matter, then enters the A2/O tank for biological treatment to remove BOD, nitrogen, phosphorus and so on, and then the sewage enters the sedimentation tank for mud separation. Then the sewage is disinfected and effluent.
Keywords: sewage treatment; scheme design; process flow; process calculation
目 录
摘 要
Abstract
第一章 概况
1.1城市概况
1.1.1社会经济
1.1.2交通条件
1.2自然条件
1.2.1地形地貌
1.2.2气候特点
1.2.3水文条件
1.3设计任务
1.3.1设计题目
1.3.2设计的原始资料
1.3.3设计的依据
第二章 污水处理厂设计说明
2.1总体设计
2.1.1厂址选择
2.1.2污水收集及排放系统
2.1.3进水水量、水质及处理标准
2.2污水及污泥工艺流程的选择
2.2.1污水处理工艺的选择原则
2.2.2原污水生化处理的可行性
2.2.3水中污染物的去除原理
2.2.4方案对比
2.2.5污水处理工艺流程的确定
2.2.6污泥处理工艺流程的确定
2.3工艺总平面图的布置
第三章 污水处理构筑物的工艺设计
3.1主要处理构筑物的选择
3.1.1格栅
3.1.2泵房
3.1.3平流沉砂池
3.1.4吸附池
3.1.5沉淀池
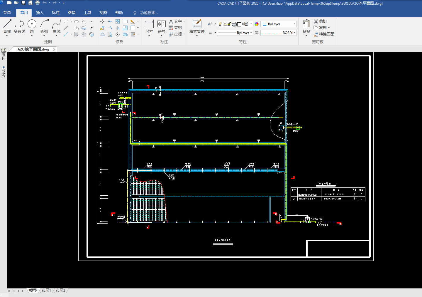
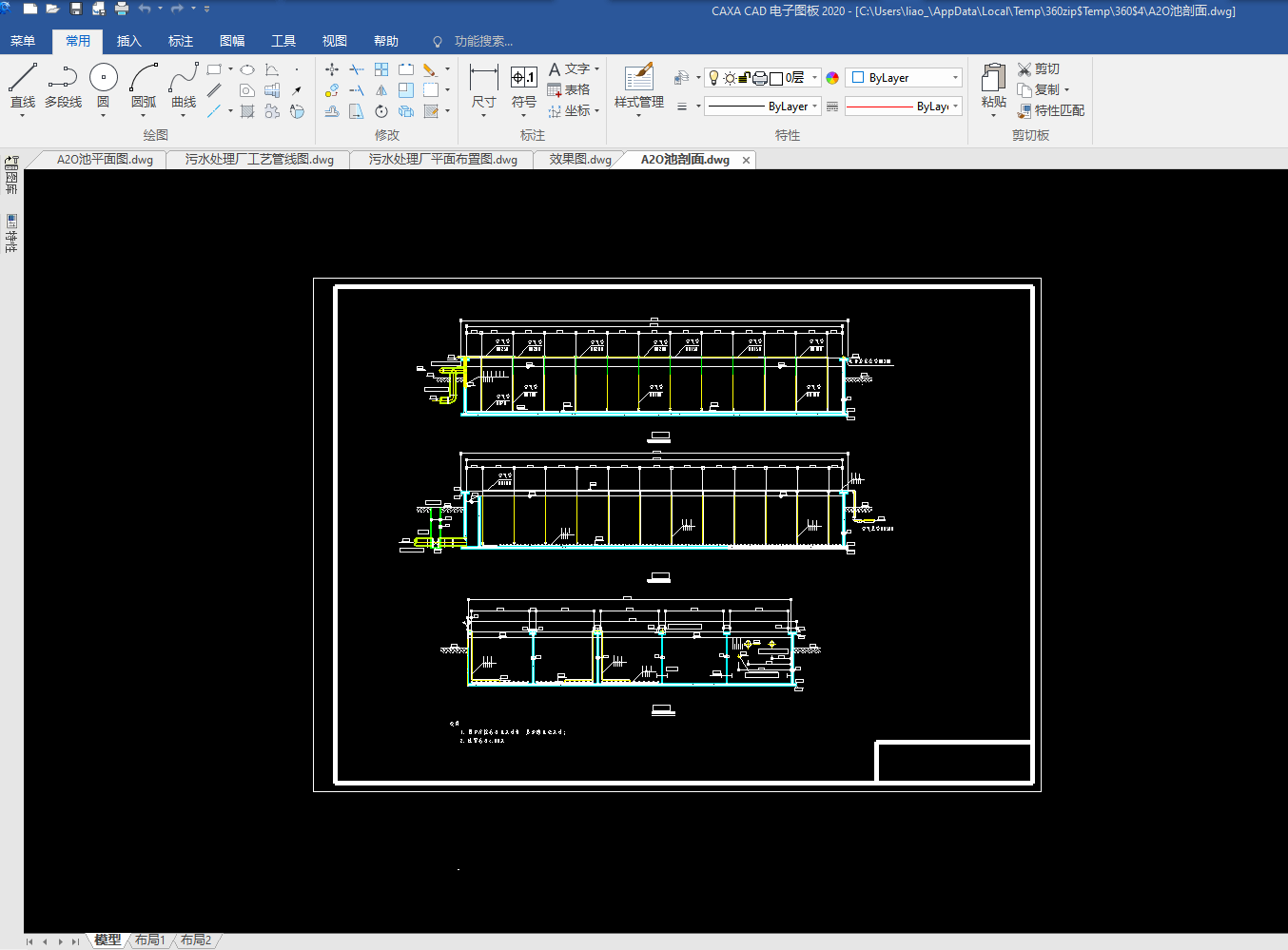
3.1.6倒置A2/O反应池
3.1.7污水的三级处理
3.1.8接触消毒池
3.1.9集配水井
3.1.10鼓风机房
3.1.11回流污泥泵房
3.1.12连续式重力浓缩池
3.1.13厌氧两级消化池
3.1.14脱水机房
3.1.15污泥干化场
3.1.16 厂内污水管线
3.1.17 自动控制、供电
3.1.18 道路及绿化
第四章 污水处理厂设计计算
4.1各处理单元设计计算
4.1.1格栅
4.1.2平流沉砂池
4.1.3细格栅
4.1.4吸附池计算
4.1.5中间沉淀池
4.1.6再生池设计计算
4.1.7A2/O反应池
4.1.8二次沉淀池的设计计算
4.2三级处理的构筑物设计计算
4.2.1絮凝池设计要点及絮凝形式选择
4.2.2往复式隔板絮凝池设计计算
4.2.9 沉淀池的设计计算
4.2.10砂滤间的设计计算
4.2.11接触消毒池的设计计算
4.3污泥处理
4.3.1污泥浓缩池
4.3.2污泥消化池设计计算
4.3.3污泥脱水机房
4.3.4污泥泵房
4.3.5贮泥池
4.4高程计算
4.4.1污水流程各构筑物的水位计算
4.2.2污泥流程
第五章 技术经济分析
5.1污水厂工程技术经济分析
5.2污水处理成本计算
第六章 结论
致 谢
















毕业66资料站 biye66.com ©2015-2026 版权所有 | 微信:15573586651 QQ:3903700237
本站毕业设计和毕业论文资料均属原创者所有,仅供学习交流之用,请勿转载并做其他非法用途.如有侵犯您的版权有损您的利益,请联系我们会立即改正或删除有关内容!