| 设计 任务书 文档 开题 答辩 说明书 格式 模板 外文 翻译 范文 资料 作品 文献 课程 实习 指导 调研 下载 网络教育 计算机 网站 网页 小程序 商城 购物 订餐 电影 安卓 Android Html Html5 SSM SSH Python 爬虫 大数据 管理系统 图书 校园网 考试 选题 网络安全 推荐系统 机械 模具 夹具 自动化 数控 车床 汽车 故障 诊断 电机 建模 机械手 去壳机 千斤顶 变速器 减速器 图纸 电气 变电站 电子 Stm32 单片机 物联网 监控 密码锁 Plc 组态 控制 智能 Matlab 土木 建筑 结构 框架 教学楼 住宅楼 造价 施工 办公楼 给水 排水 桥梁 刚构桥 水利 重力坝 水库 采矿 环境 化工 固废 工厂 视觉传达 室内设计 产品设计 电子商务 物流 盈利 案例 分析 评估 报告 营销 报销 会计 | |||||
|
|||||
|
|||||
|
|||||
摘 要
本设计为大治河西枢纽二线船闸基本的设计,从社会的经济、自然的条件考虑,在确保安全和通过能力的前提下,综合考量船闸总体的布置与初步的规划,有船闸地理位置的选择,引航道、船闸的高程及平面布置,以及船闸的耗水量和通过能力的计算;选定船闸各部位的结构型式;初步设计输水系统:如水力计算、廊道尺寸的确定以及型式选择等;最后是上闸首结构计算,有荷载的计算、稳定性的验算及底板的配筋计算。设计之中各项的拟定与计算均按现行的规范进行,实现船闸基本设计的目标,达到任务书的要求。
关键词:水运工程,船闸,大治河西枢纽,总体设计
Abstract
This design is for the basic design of the Second Line Shiplock of the West Hub of Dazhi River. Considering the social economic and natural conditions, the overall layout and preliminary planning of the ship lock are taken into consideration on the premise of ensuring the safety and the ability to pass, with the selection of the location of the ship lock, the elevation and layout of the navigation channel, the ship lock, and the ship lock. The water consumption and the calculation of the capacity are selected; the structural types of the various parts of the lock are selected; the preliminary design of the water conveyance system, such as the hydraulic calculation, the determination of the size of the corridor and the type selection, etc.; finally, the calculation of the upper gate structure, the calculation of the load, the checking of the stability and the calculation of the reinforcement of the floor. The design and calculation of the design are carried out according to the current specifications, so as to achieve the goal of the basic design of the ship lock and meet the requirements of the task book.
Key words: port&waterway engineering, shiplock,the West Hub of DazhiRiver, general arrangement
目 录
第一章设计基本资料 1
1.1 工程概况 1
1.2 水文和气象的资料 1
1.3 工程地质资料 2
1.4 经济资料 3
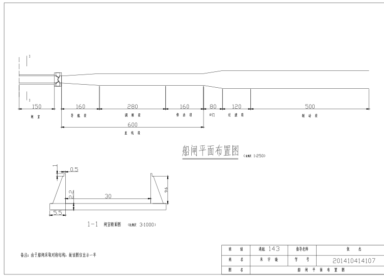
第二章总体规划 4
2.1 船闸地理位置确定 4
2.2 船闸线、级数确定 4
2.3 船闸的基本尺度确定 5
2.4 船闸的各部分的高程确定 8
2.5 引航道的尺度的确定和平面的布置 10
2.6 船闸的通过能力的计算 13
2.7 耗水量的计算 15
2.8 总体的船闸布置的要求 16
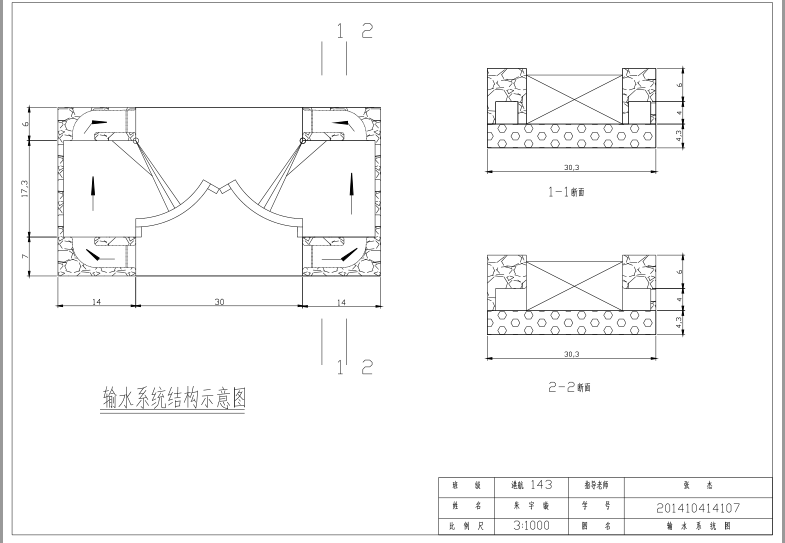
第三章输水系统设计及水力计算 18
3.1 输水系统设计原则 18
3.2 闸首输水系统的选型 18
3.3 布置集中的输水的系统 18
3.4 集中的输水的系统的水力计算 21
3.5 输水的系统的灌、泄水的特征曲线计算及绘制 25
3.6 输水装置水力的校核 31
第四章船闸结构选型及计算 34
4.1 闸门的选型及尺度确定 34
4.2 阀门尺度的确定和结构的选型 35
4.3 闸首的选型及尺度确定 35
4.4 闸室的选型及尺度确定 37
第五章船闸的结构的设计 39
5.1 上闸首的荷载的计算 39
5.2 上闸首的地基的计算 52
5.3 闸首的底板的计算 55
5.4 闸首的底板的配筋的计算 57
第六章设计说明 60
6.1 总体规划 60
6.2 输水系统设计及水力计算 62
6.3 船闸结构选型及计算 64
6.4 船闸结构设计 65
参考文献 66












毕业66资料站 biye66.com ©2015-2026 版权所有 | 微信:15573586651 QQ:3903700237
本站毕业设计和毕业论文资料均属原创者所有,仅供学习交流之用,请勿转载并做其他非法用途.如有侵犯您的版权有损您的利益,请联系我们会立即改正或删除有关内容!