| 设计 任务书 文档 开题 答辩 说明书 格式 模板 外文 翻译 范文 资料 作品 文献 课程 实习 指导 调研 下载 网络教育 计算机 网站 网页 小程序 商城 购物 订餐 电影 安卓 Android Html Html5 SSM SSH Python 爬虫 大数据 管理系统 图书 校园网 考试 选题 网络安全 推荐系统 机械 模具 夹具 自动化 数控 车床 汽车 故障 诊断 电机 建模 机械手 去壳机 千斤顶 变速器 减速器 图纸 电气 变电站 电子 Stm32 单片机 物联网 监控 密码锁 Plc 组态 控制 智能 Matlab 土木 建筑 结构 框架 教学楼 住宅楼 造价 施工 办公楼 给水 排水 桥梁 刚构桥 水利 重力坝 水库 采矿 环境 化工 固废 工厂 视觉传达 室内设计 产品设计 电子商务 物流 盈利 案例 分析 评估 报告 营销 报销 会计 | |||||
|
|||||
|
|||||
|
|||||
目 录
1.总说明 1
1.1工程概况及基本特征 1
1.2设计指导思想与原则 2
1.3设计依据与设计资料 2
1.4主要技术经济指标 2
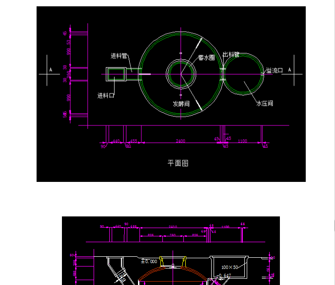
2.秸秆厌氧消化工艺总体设计 3
2.1秸秆产生量 4
2.2工程规模 8
2.3厌氧消化工艺 8
2.4厌氧消化工程设计 9
3.总图布置 13
4.环境保护 14
农村大多以种植业和养殖业为主,故而产生的垃圾主要是秸秆、落叶和人畜秸秆等一些易腐烂的有机物,然而这些有机物垃圾都是可以进行厌氧发酵处理的。因而,我们可以利用它们来很好地进行制取沼气,进而为我们所用。
我国厌氧消化池市场发展迅速,产品产出持续扩张,国家产业政策鼓励厌氧消化池产业向高技术产品方向发展,国内企业新增投资项目投资逐渐增多。投资者对厌氧消化池市场的关注越来越密切,这使得厌氧消化池市场越来越受到各方的关注。
厌氧消化的二大菌系-不产甲烷菌群与产甲烷菌群的种类及其特性,颗粒污泥的作用及其形成机制等,许多国家都有着深入的研究,这次大会日本、美国、中国、丹麦等都有显微照片及资料说明。 颗粒污泥的形成有着特定的条件,与进料速度、TS浓度、滞留时间及内在的N、P、K、Ca等的浓度有着密切的关系。 据美藉华人石家兴教授报导,鸡粪高温厌氧消化中分解鸡毛的是一种枯草杆菌产生的角质酶所致,该酶已找到了基因并已克隆成功。此外,关于厌氧微生物的动力学研究,美国、墨西哥、日本等也有所介绍,为工程运行自动化管理等打下了良好基础。
厌氧消化技术的经济性和运行管理水平要求处理规模应该是大型处理项目,并且下游完善可靠的最终处置和沼气资源化利用渠道也是项目顺利实施的重要保障。最后,源回收固然重要,但如果能使物质按照最接近自然的方法循环起来,更有意义,这方面我们完全可以参照污水处理发展所走过的道路。



毕业66资料站 biye66.com ©2015-2026 版权所有 | 微信:15573586651 QQ:3903700237
本站毕业设计和毕业论文资料均属原创者所有,仅供学习交流之用,请勿转载并做其他非法用途.如有侵犯您的版权有损您的利益,请联系我们会立即改正或删除有关内容!