| 设计 任务书 文档 开题 答辩 说明书 格式 模板 外文 翻译 范文 资料 作品 文献 课程 实习 指导 调研 下载 网络教育 计算机 网站 网页 小程序 商城 购物 订餐 电影 安卓 Android Html Html5 SSM SSH Python 爬虫 大数据 管理系统 图书 校园网 考试 选题 网络安全 推荐系统 机械 模具 夹具 自动化 数控 车床 汽车 故障 诊断 电机 建模 机械手 去壳机 千斤顶 变速器 减速器 图纸 电气 变电站 电子 Stm32 单片机 物联网 监控 密码锁 Plc 组态 控制 智能 Matlab 土木 建筑 结构 框架 教学楼 住宅楼 造价 施工 办公楼 给水 排水 桥梁 刚构桥 水利 重力坝 水库 采矿 环境 化工 固废 工厂 视觉传达 室内设计 产品设计 电子商务 物流 盈利 案例 分析 评估 报告 营销 报销 会计 | |||||
|
|||||
|
|||||
|
|||||
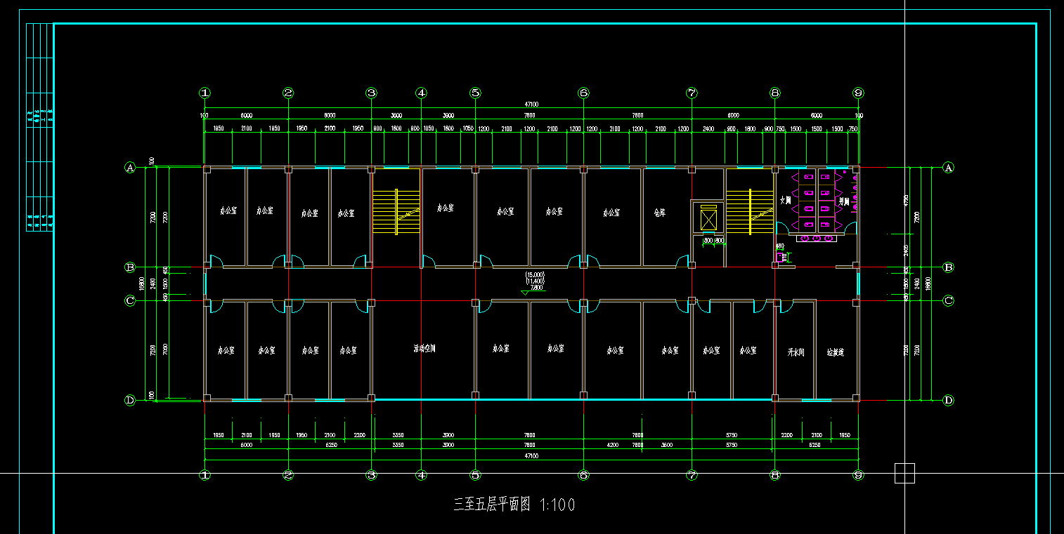
某市地方税务局综合办公楼设计
摘要 3
前言 4
第一章 设计任务及基本要求 5
1.1 设计原始资料 5
1.2 建筑设计要求 5
1.3结构设计任务及要求 5
第二章 建筑设计说明 6
2.1建筑平面设计 6
2.2剖面设计 6
第三章 结构设计 7
3.1 结构方案的选择及结构布置 7
第四章 侧移线刚度计算 11
第五章 恒荷载作用下内力计算 12
5.1 框架恒荷载标准值计算 12
5.2 框架梁恒载作用下线荷载统计计算 13
5.3 框架节点集中荷载计算 16
5.4 恒载作用下框架梁的内力计算 19
第六章 活荷载作用下内力计算 26
6.1 框架梁活恒载作用下线荷载统计计算 27
6.2 活荷载作用下框架节点集中荷载计算 28
6.3 活载作用下框架梁的内力计算 30
第七章 风荷载作用下内力计算 37
7.1 风荷载标准值计算 37
7.2 风载作用下抗侧移刚度D的计算: 38
7.3 风荷载作用下的内力计算 40
第八章 地震荷载作用下内力计算 45
8.1 重力荷载代表值计算 45
8.2 横向框架自振周期计算 47
8.3 横向水平地震作用计算 48
8.4 水平地震作用下框架的内力计算 50
第九章 内力组合 54
9.1 横向框架梁的内力组合 55
9.2 竖向框架柱的内力组合 62
第十章 截面设计 68
10.1 设计内力 68
10.2 梁截面设计 68
10.3 框架柱截面设计 70
第十一章 基础设计 74
第十二章 楼梯设计 80
结论 85
谢辞 86
参考文献 87
本工程是陕西韩城市某市地方税务局综合办公楼设计,为混凝土框架体系。毕业设计过程中主要是对建筑设计和结构设计两部分进行的。对于结构设计又分为手算及电算两部分,其中建筑部分主要是对建筑功能进行分区,进一步确定建筑物的平面、立面以及剖面。而在结构设计部分,主要是进行梁柱的截面设计和整个建筑物的抗震设计。手算部分的具体内容是对选定的一榀横向框架进行框架的结构梁柱进行设计,即在确定计算简图的基础上,通过对水平荷载和竖向荷载的统计计算组合出梁柱的最不利内力组合,并以此为设计依据来确定梁柱的截面尺寸和所需钢筋的面积。除对梁柱进行设计外,根据毕业设计的要求,还需要设计基础和现浇板。而电算部分则主要是应用PKPM先进行整体结构的建模和荷载输入,得到电算的结果并分析其合理性,然后绘制梁板柱结构施工图,最后,还应对比手算和电算的结果并进行分析其产生差异的原因。
Abstract: This project is design of shanxi Inn, for concrete frame system. Major is in the process of graduation design on architectural design and structure design of two parts. Computerized structural design is divided into hand calculation and two parts, building parts of which are mainly on function Division of structure, elevation and section of the plane, to further determine project. And in part of the structural design, mainly for seismic design of beam - column design, and overall. Hand calculation part of specific steps to a PIN horizontal framework for structural calculation and design of the framework, that is determined on the basis of calculation of sketch, through horizontal and vertical loads calculated beam combination of internal forces of the most disadvantaged, and design to determine the section of the beam section dimensions and required reinforcement area. In addition to the design of beam - column joints, according to the graduation requirements, you need to design a staircase, Foundation and cast plates. Part PKPM application is mainly conducted computerized modeling and load input structure, get computerized results and analysis of its reasonableness. Finally, should also be computerized comparison of hand calculation and results and analysis of its reasons for the variance.
关键词: 结构设计 荷载计算 建立模型 计算配筋 结构验算
Keywords: structural design load calculation establishing model calculation reinforced structure of completeness
本设计是某市地方税务局综合办公楼设计。该大楼层数为5层,主框架高度为18.6m,结构类型为钢筋混凝土框架结构。
通过这次设计要达到以下目的:
首先,该建筑结构为钢筋混凝土框架结构, 通过这次的毕业设计可以巩固自己在大学里所学过的相关课程,如《房屋建筑学》、《基础工程》、《材料力学》、《结构力学》、《混凝土结构设计原理》、《建筑结构选型》、《高层建筑结构设计》、《建筑结构抗震》等结构设计相关课程内容,并可以系统的将大学四年所学的知识联系在一起,做到理论联系实际,并掌握建筑工程设计的步骤和方法。
其次,使自己熟悉建筑工程建设的各项法规与规程,了解建筑工程项目设计的基本内容和环节;熟悉房屋的建筑结构选型、结构布置、结构计算及主要建筑结构施工图绘制的全过程;通过绘制施工图,编制计算书可以强化自己绘图和使用专业软件进行分析计算的能力。
最后,毕业设计可以培养自己综合应用所学知识和技能,解决(实际)工程问题和进行创造性工作的基本技能;培养自己独立工作和团队协作能力;培养实事求是、科学严谨、勇于创新的作风;从而具备工程技术人员应有的基本技能和素质;是对自己学习成果的一次全面考验。
由于框架结构的优越性,工作中接触到框架结构设计是自己必须面对的。通过毕业设计可以提高我们综合运用所学知识的能力,使我们具有独立解决建筑设计、结构设计和施工实际问题的技能,掌握土建设计和施工的全过程,为今后的工作打下良好的基础。
通过毕业设计对大学期间所学的知识做一个系统的总结和应用,在熟悉任务书的基础上参观、比较同类建筑,查阅、搜集有关设计资料使我所学的知识得以综合应用,提高综合知识的应用能力,对所学过的知识得有个系统的深化。并培养我独立解决建筑设计、结构设计的内容和步骤,及掌握建筑施工图结构施工图绘制的方法,为今后的实际工作打下良好的基础。





毕业66资料站 biye66.com ©2015-2026 版权所有 | 微信:15573586651 QQ:3903700237
本站毕业设计和毕业论文资料均属原创者所有,仅供学习交流之用,请勿转载并做其他非法用途.如有侵犯您的版权有损您的利益,请联系我们会立即改正或删除有关内容!