| 设计 任务书 文档 开题 答辩 说明书 格式 模板 外文 翻译 范文 资料 作品 文献 课程 实习 指导 调研 下载 网络教育 计算机 网站 网页 小程序 商城 购物 订餐 电影 安卓 Android Html Html5 SSM SSH Python 爬虫 大数据 管理系统 图书 校园网 考试 选题 网络安全 推荐系统 机械 模具 夹具 自动化 数控 车床 汽车 故障 诊断 电机 建模 机械手 去壳机 千斤顶 变速器 减速器 图纸 电气 变电站 电子 Stm32 单片机 物联网 监控 密码锁 Plc 组态 控制 智能 Matlab 土木 建筑 结构 框架 教学楼 住宅楼 造价 施工 办公楼 给水 排水 桥梁 刚构桥 水利 重力坝 水库 采矿 环境 化工 固废 工厂 视觉传达 室内设计 产品设计 电子商务 物流 盈利 案例 分析 评估 报告 营销 报销 会计 | |||||
|
|||||
|
|||||
|
|||||
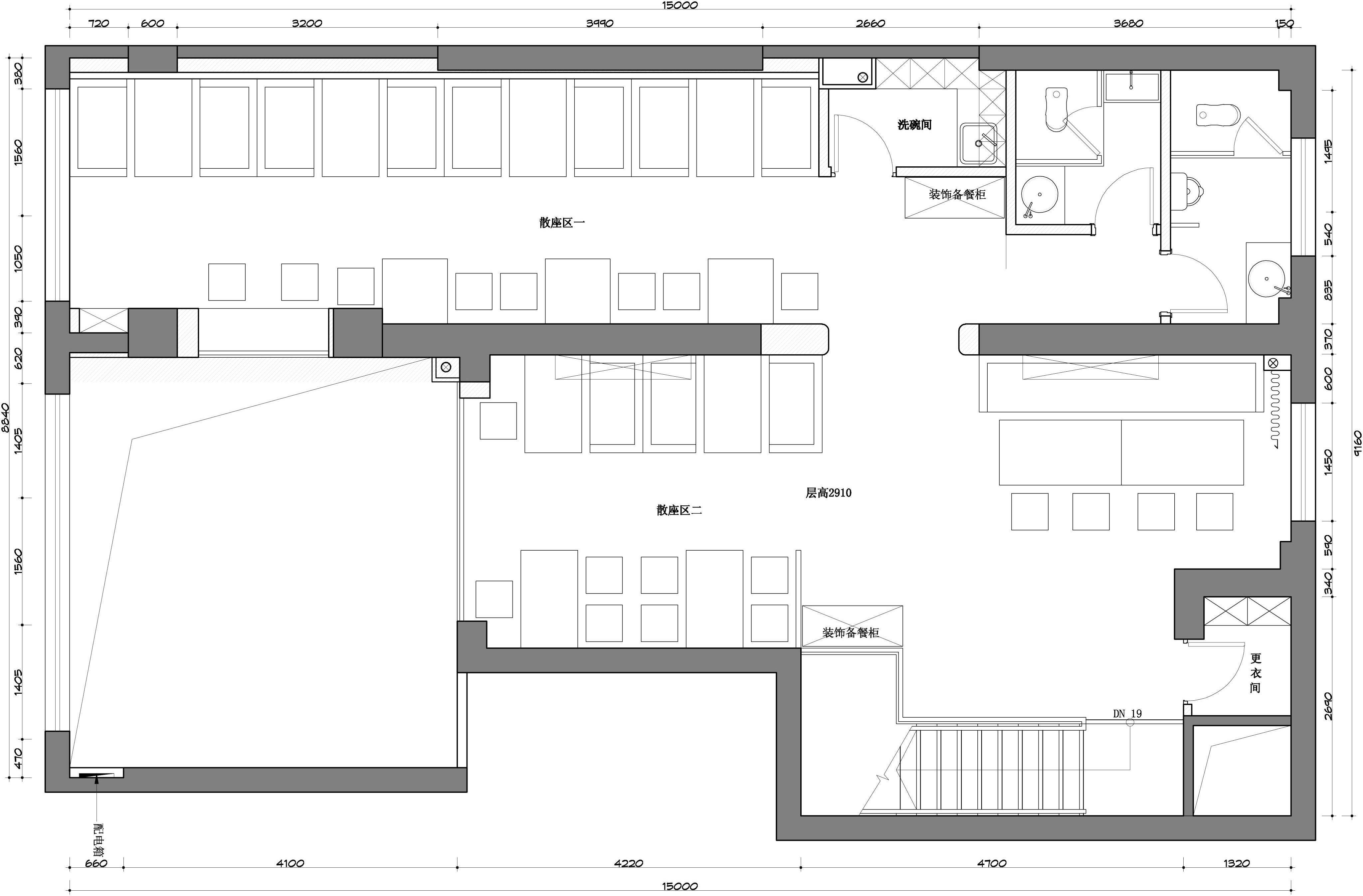
铂晶湾咖啡厅设计说明
项目名称:铂晶湾咖啡厅
项目地点:乌鲁木齐,铂晶湾
建筑面积:258㎡
主要材料:拼花木地板、稻草漆、花砖、护墙板、木拼条。
设计公司:大木叙品设计
主案设计:
协助设计:
设计监理:叙品设计监理
空间陈设:叙品陈设(品三品陈设配套)
设计说明:吴上智慧
本案位于新疆乌鲁木齐铂晶湾高档小区,居住人群大多为年轻人。年轻并时尚的市场定位,很好的诠释了未来城市生活空间的发展愿景。将营造出一个别样的舒适氛围。
主营简餐,烘焙、咖啡等。本案的设计的风格造型来源于欧洲的文化和生活方式,但最直接的是来源于欧式古典建筑。虽然欧式古典建筑在不同的时期和不同的地区风格造型各不相同,但欧式西点并不需要完全复制一个古典建筑的室内,将欧式古典建筑的元素和构成进行简化和提练,应用于装饰。
采用loft自然的设计欧式风格,以原始的氛围衬托出现代人简单的生活态度,摒弃了无谓、复杂的造型,体现出休闲空间本质的美感。
前厅用稻草漆、墨绿色护墙板,做旧红砖。将成为整个空间的主体,稻草漆让你时时刻刻拥有自然的乡土气息,转身于宁静,古朴,粗狂的环境中。地面采用木地板,而木质材料则最大限度引入自然元素,为空间增添了舒适和谐之感。
就餐区由外到内高度配合,从一种感官到内心感受递进,创造出舒适惬意的氛围,让人感到轻松自在。在此环境下体会室内在设计细节的细致、独特和关怀,进而产生发自内心的欣赏和愉悦。通过设计师在软装饰上的用色,使用彩色餐椅,与地面的木地板对比给整个空间增添了活力。以多变的形态进一步给空间增添了一丝活力。
二楼空间延续一楼的设计手法,墙面稻草漆的叠加山丘,突出墙面的质感。再加上二楼挑空的视觉,阳光照射进来,给人一种暖洋洋的舒适感,让人放下繁重的工作,喧嚣的生活,静静听自己内心深处的声音。
卫生间整体采用花砖和木拼条,视觉冲击力很强,通过放置饰品点缀,增加了一道美丽的风景。给人眼前一亮的感觉。


毕业66资料站 biye66.com ©2015-2026 版权所有 | 微信:15573586651 QQ:3903700237
本站毕业设计和毕业论文资料均属原创者所有,仅供学习交流之用,请勿转载并做其他非法用途.如有侵犯您的版权有损您的利益,请联系我们会立即改正或删除有关内容!